c.1901 North Carolina Home For Sale By Owner on 0.89 Acre $165K
OHU50K Notes $165,000
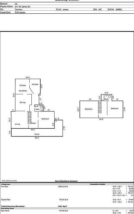
Three-bedroom, two-bath North Carolina home for sale with a gingerbread wrap-around porch and metal roof. The vernacular home has hardwood floors, center hall, formal dining room and large backyard. Central air, charm and 2,281-sf of space could make this a great candidate for an AirbnB or wonderful family home. The town of about 200 people, was nominated as a Historic District in 1974 and subsequently placed in the National Register of Historic Places, lies near the Trent River for fishing and boating opportunities. Plus, you will be happy to know that the town has very low crime, and this neighborhood is especially safe per crimegrade.org.
Zillow Comments
This older home is absolutely charming. Home has 3 bedrooms, 2 full bathrooms, formal dining room. Home has a large backyard and wrap around front porch.
- 3 beds
- 2 baths
- 0.89 acre lot
- Circa 1901
More North Carolina Properties
If interested in a property, pleases contact the realtor whose link is provided in the post below, or contact an agent of your own choosing. Independent verification of details and status is recommended.
311 W Jones St, Trenton, NC 28585 $165,000
- Contact Realtor: Property Owner (252) 229-1411
- Google Maps
- Niche
*
*
311 W Jones St, Trenton, NC 28585
*
*
*
*
*
*
*
*
*
*
*
*
*
*
*
*
*
*
*
*
*
*
*
*
*
*
*
*
*
*
*
*
You May Also Like
c.1960 South Carolina Fixer Upper Country Home For Sale on 2 Acres $59,950
July 19, 2024
c.1900 Ohio Fixer Upper For Sale $50K
March 4, 2026