Under $75K Thursday – Circa 1933 Sweden Home For Sale Under $66K USD
OHU50K Notes $65,794 USD
Built in 1933, here is a Gungvala, Sweden home for sale with two bedrooms, one bath, and outbuilding on almost a half acre. Love the sleeping porch!

Agent Comments
*2 bedrooms
*1 Bath
*839 sq ft.
*0.48 acres

If interested in a property, please contact the realtor whose link is provided in the post below, or contact an agent of your own choosing. Independent verification of details and status is recommended.
Gungvala, Sweden $65,794 USD
- Contact Realtor: Fastighetsbyrån Huvudkontor
- Fastighetsbyrån, Box 644, 101 32 Stockholm
Besöksadress: Västra Järnvägsgatan 7 - Fax: 08-54 54 55 01
- E-post: [email protected]
- Google Map

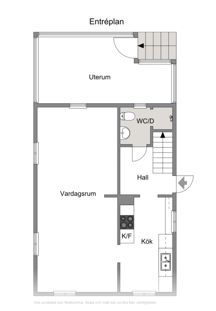
Outside Room
Simpler conservatory with connection from the garden.

Hall
Smaller hall with space for hanging outerwear, stairs to upper floor, laminate floor.

Bathroom
Bathroom furnished with wet room wallpaper and wet room carpet, the equipment consists of toilet, sink with commode and shower.

Kitchen
Kitchen with kitchen furniture in an older design, painted kitchen doors. The equipment consists of a stove with glass ceramic hob, fan, dishwasher and fridge/freezer. Space for a smaller dining table next to the window. Plastic carpet on the floor.

*

Living room/dining room
Large, bright living room and dining room in open plan, with plenty of space for both sofa furniture and dining table. Nice light from several windows in three directions. Laminate flooring.

*

*


Upper Level
Hall
Hall with painted wooden floor, spacious wardrobe for extra storage.

Bedroom
Bedroom with storage in side attic, wooden floor.

*

Bedroom
Bedroom with storage in side attic, painted wooden floor.
*

*

*

*

*

*
You May Also Like
c.1954 Pennsylvania Home For Sale With View Under $40K
December 11, 2023
Circa 1916 Illinois Bungalow Under $43K
May 17, 2023
One Comment
Janise McKinnon
Beautiful home!